Центр по проведению судебных экспертиз и исследований
автономная некоммерческая организация
«Судебный Эксперт»
Автономная некоммерческая организация
«Судебный Эксперт»

Экспертиза №128402

Завершена в апреле 2023 года

Центральный районный суд г. Кемерово | Дело №2-4233/22

, ООО СЗ Латириус

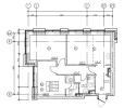
Объект исследования

Объектом исследования являлось жилое помещение, общей площадью 65,5 м², расположенное на 6 этаже многофункционального жилого комплекса. Данное жилое помещение было передано в рамках договора участия в долевом строительстве.

Согласно приложению к договору долевого участия, класс энергоэффективности здания оценивался как «С». Передача объекта застройщиком предполагала определенный уровень готовности поверхностей и коммуникаций, при этом финишная отделка стен, потолков, полов комнат и вспомогательных помещений не выполнялась.

Основные характеристики объекта исследования:

  • Тип объекта: Жилое помещение (квартира)
  • Общая площадь: 65,5 м²
  • Этаж: 6
  • Местоположение: г. Москва, проезд Багратионовский, д5А, корп.1
  • Год постройки/сдачи: Строительно-монтажные работы выполнялись с 12.12.2017 по 02.08.2021, акт приемки объекта капитального строительства от 06 июля 2021 года.

Состав жилого помещения:

  • Прихожая: 5,8 м²
  • Санузел: 4,6 м²
  • Ванная: 3,2 м²
  • Спальня 1: 13,8 м²
  • Спальня 2: 16,7 м²
  • Гостиная: 13,2 м²
  • Кухня-ниша: 8,2 м²

Техническое описание квартиры на момент передачи включало следующие элементы:

  • Возведение внутриквартирных перегородок из газосиликатных блоков автоклавного твердения.
  • Оштукатуривание поверхности стен (кроме санузлов).
  • Шпатлевание поверхности стен (кроме санузлов).
  • Устройство стяжки пола.
  • Устройство подвесных потолков из гипсокартонных листов.
  • Прокладка труб горячего и холодного водоснабжения.
  • Прокладка труб канализации.
  • Прокладка силовой кабельной разводки.

Город

Москва

Адрес

проезд Багратионовский, д5А, корп.1, кв.434

Цель экспертизы

Целью проведения комплексной строительно-технической и оценочной экспертизы являлось всестороннее исследование фактического состояния объекта долевого строительства для определения его соответствия договорным обязательствам, требованиям строительных норм и правил, а также проектной документации. Экспертам предстояло не только выявить наличие недостатков в исследуемой квартире, но и определить причины их возникновения, классифицировать их по типу (строительные, эксплуатационные, иные), а также оценить их устранимость. Важной частью работы было определение способов устранения выявленных недочетов, ориентировочных временных затрат на проведение необходимых работ, и расчет среднерыночной стоимости такого устранения на дату проведения экспертизы в городе Москва. Эта задача потребовала применения комплекса экспертных методов и глубоких знаний в области строительства и оценки.

В процессе работы эксперты сталкивались со сложностью детального анализа многочисленных строительных элементов и отделочных покрытий во всех помещениях квартиры, включая оконные блоки, стяжку пола, перегородки и системы коммуникаций. Работа включала в себя визуальное и инструментальное обследование объекта с использованием специализированного оборудования, такого как рулетка, лазерный дальномер и строительный уровень, а также цифровая камера для фиксации состояния. Применялся метод информационного и ситуационного анализа, а также детальное изучение представленных материалов, включая гражданское дело и акты осмотра. Все выявленные аспекты сравнивались с обширным перечнем нормативно-технической документации, включая СП 13-102-2003, ГОСТ 26433.2-94, Федеральный закон от 30 декабря 2009 г. № 384-ФЗ, СП 54.13330.2016, СП 70.13330.2012, ГОСТ 30971-2012, ГОСТ 31173-2016, СП 71.13330.2017, СП 29.13330.2011, СП 72.13330.2016 и ГОСТ 23166-99, что позволило обеспечить объективность и обоснованность всех выводов экспертного заключения.

Вопросы на исследование

  1. Соответствует ли фактическое состояние исследуемой квартиры, переданной застройщиком, требованиям договора участия в долевом строительстве, требованиям СП, СНиП, ГОСТ, другим строительным нормам и правилам, и действующей нормативно-технической документации?
  2. С учетом ответа на первый вопрос, какие недостатки имеются в исследуемой квартире, причины их возникновения (строительные, эксплуатационные, иные)?
  3. Являются ли выявленные в исследуемой квартире, недостатки устранимыми, если да, то способы их устранения и временные затраты?
  4. Какова стоимость устранения выявленных в исследуемой квартире, недостатков по среднерыночным ценам г. Москва на дату проведения экспертизы?

Иллюстрации

Кейс связан со следующими видами экспертиз:

Смотрите также:

Экспертиза №135770

Завершена в апреле 2023 года

Судебный участок мирового судьи № 369 Тверского района г. Москвы | Дело №02-0006/369/2023

, ООО "Автодор - платные дороги"

Аннотация

Судебная автотехническая экспертиза была проведена для установления характера повреждений и расчета рыночной стоимости восстановительного ремонта транспортного средства "SsangYong Kyron", которое было повреждено в результате происшествия 19 июня 2022 года. В рамках исследования экспертами был выполнен детальный визуальный осмотр автомобиля с тщательной фотофиксацией всех выявленных дефектов. При этом было принципиально важно отделить повреждения, связанные с инцидентом, от тех, что возникли в процессе естественной эксплуатации. Расчет стоимости ремонта осуществлялся с использованием утвержденных методик и стандартов, с учетом износа деталей и актуальных рыночных цен на запасные части и ремонтные работы.

Вид экспертизы

Экспертиза №134108

Завершена в апреле 2023 года

Муромский городской суд Владимирской области | Дело №2-222/2023

,

Аннотация

Судебная строительно-техническая экспертиза по определению соответствия качества и объема выполненных ремонтно-отделочных работ в жилом помещении действующим нормам и условиям договора подряда, а также расчету рыночной стоимости устранения выявленных дефектов, включающая визуальный осмотр, инструментальные измерения и анализ нормативной документации.

Вид экспертизы

Экспертиза №131461

Завершена в апреле 2023 года

Зеленоградский районный суд города Москвы | Дело №02-0075/2023

,

Аннотация

Судебная оценочная экспертиза, назначенная Зеленоградским районным судом, была проведена для определения рыночной стоимости двух легковых автомобилей Toyota Land Cruiser 100 (2007 г.в.) и Toyota Land Cruiser 200 (2008 г.в.). В ходе исследования эксперты применили сравнительный подход, базирующийся на анализе рыночных предложений аналогичных транспортных средств. Было уделено внимание выявлению и оценке физического износа и специфических дефектов кузова, лакокрасочного покрытия и функциональных элементов каждого автомобиля. Для расчетов использовались утвержденные Федеральные стандарты оценки и специализированные методики, позволившие учесть пробег, возраст и фактическое состояние транспортных средств, а также применить необходимые корректировки. Работа обеспечила объективное определение стоимости объектов в рамках судебного дела.

Вид экспертизы

Экспертиза №129086

Завершена в апреле 2023 года

Арбитражный суд города Москвы | Дело №А40-75404/2022

ООО "Стоун-Тэкс", ФГАОУ ДПО "Академия минпросвещения России"

Аннотация

Комплексная землеустроительная, оценочная и строительно-техническая экспертиза была проведена для определения границ смежных земельных участков и оценки возможности доступа к нежилому помещению. В ходе исследования выполнялись геодезические измерения для установления точных площадей и границ участков, а также анализировались варианты прохода пешеходов и проезда автомобилей к входу нежилого помещения. Эксперты применяли методы визуального осмотра, спутникового геодезического позиционирования и анализа градостроительной документации, а также произвели расчет размера платы за сервитут для обеспечения необходимого доступа.

Вид экспертизы

Экспертиза №129939

Завершена в апреле 2023 года

Арбитражный суд Московской области | Дело №А41-247/2022

ООО "Городская управляющая компания "ДОМЖИЛСЕРВИС", ООО "ДомСтройИнвест"

Аннотация

Судебная строительно-техническая экспертиза многоквартирного дома и прилегающей территории проводилась с целью установления причин выявленных строительных недостатков, определения необходимого комплекса ремонтно-восстановительных работ для их устранения, а также оценки возможности проведения ремонтных работ входных групп пожарных лестниц без демонтажа существующей фундаментной плиты. Исследование включало визуальный осмотр, проведение замеров, фотофиксацию дефектов отмостки, фасада, входных групп, тротуаров и детской игровой площадки, а также анализ документации и соответствие примененных решений строительным нормам и правилам в городе Мытищи.

Вид экспертизы

Экспертиза №129218

Завершена в апреле 2023 года

Арбитражный суд города Москвы | Дело №А40-74680/22-19-535

ООО "Радонстрой", ООО "Ветбиохим"

Аннотация

Судебная комплексная строительно-техническая экспертиза и экспертиза сметной документации, проведенная в рамках дела № А40-74680/22-19-535, для определения объемов, фактической стоимости и соответствия качества выполненных ремонтных работ и монтажа инженерных систем в офисных помещениях 12-го этажа нежилого здания в Москве. Эксперты анализировали проектную, сметную и исполнительную документацию, включая акты КС-2 и КС-3, дизайн-проект, а также проводили визуальное и инструментальное обследование объекта. Ключевыми задачами было выявление дополнительных, неучтенных, но необходимых работ, оценка наличия и причин возникновения дефектов отделки и инженерных систем, а также расчет стоимости их устранения.

Вид экспертизы

Строительная экспертиза, экспертиза объемов и стоимости строительно-монтажных работ, экспертиза качества строительных и ремонтных работ, (еще 11 ... )

Экспертиза №115320

Завершена в апреле 2023 года

Арбитражный суд Ханты-Мансийского автономного округа - Югры | Дело №А75-15706/2020

Администрация городского поселения Белый Яр,

Аннотация

Комплексная судебная строительно-техническая экспертиза и экспертиза сметной документации по определению объемов, стоимости и качества выполненных работ по благоустройству мест общего пользования, включавших обустройство пешеходных зон, детской площадки, монтаж систем освещения и видеонаблюдения, ремонт проездов и озеленение территории. Экспертиза проводилась методами визуального и измерительного осмотра, геодезических измерений, а также детального сметного анализа.

Вид экспертизы

Экспертиза дорог и дорожных покрытий, экспертиза объемов и стоимости строительно-монтажных работ, судебная строительная экспертиза, (еще 14 ... )
У вас остались вопросы?
Свяжитесь с нами, и мы вам поможем!